ID объекта : 23945
Тип: Элитка
Этаж: 9/19
Цена: $97 900
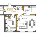
Размер объекта: 89.07 м2
Комнат: 2
Cостояние: Строящийся ПСО
Коммуникации:
Автономное отопление;
Все коммуникации центральные;
Адрес: Медерова / Панфилова
Район: Район Космос
Описание
Продаю 2х комн. квартиру в премиум доме FOST — для сильных духом 🏙️
Новый жилой дом от Imarat Progress вблизи центра Бишкека.
📍Дом расположен на первой линии по Медерова между Абая/Панфилова
▫️ 10 минут до центра, парков и ресторанов
▫️ 9/19 этаж, S - 89,07 м2, 116 квартир в доме
▫️ Отделка white-box
▫️ Архитектура в стиле ар-деко и неоклассики
▫️ Просторный охраняемый двор
▫️ Консьерж-сервис
▫️ Двухуровневый подземный паркинг
FOST — новый символ победы и свободы.
Выбирают те, кто сильнее и любят рисковать.
Цена: 1100$ за квадратный метр ( 97 900$)
тел.: 0701 88 60 88 Нурис
Агентсвто недвижимости «Дипломат»
Дипломат
ID: 23945

-preview.jpg)
-preview.jpg)
-preview.jpg)
-preview.jpg)
-preview.jpg)
